Property Description
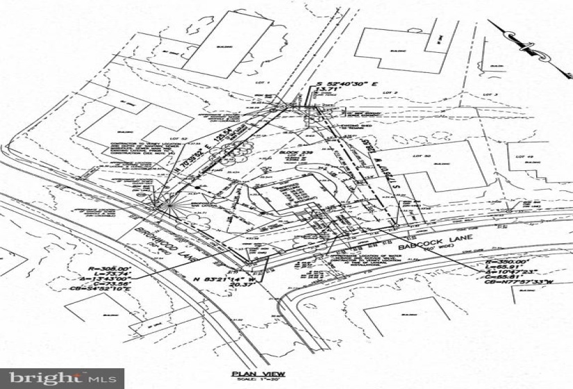
Buildable vacant lot! Construct your dream single family dwelling with basement. Zoning approved, MUA approved public water and public sewer. Photos show lot, potential house model and grading plan. For an additional $5,000.00 on top of the selling price of $89,900.00, you may have our grading plan and house plans that include a 4 bedroom, 2.5 bath, full basement, 1 car garage layout.
Features
N
N
N
Address Map
GPS
MLS Addon
Annually
Annually
WILLINGBORO TOWNSHIP PUBLIC SCHOOLS
$1,384
2020
R
: Vacant
: Public Sewer
: Public
N
$0
Land For Sale
1 BABCOCK LANE, WILLINGBORO, New Jersey 08046
0.15 Acre
$89,900
Listing ID #NJBL2000239
Basic Details
Property Type : Land
Status : ACTIVE
Listing ID : NJBL2000239
Price : $89,900
Lot Area : 0.15 Acre
Price Per SQFT : $14
Lot SQFT : 6,500 Sqft
Ownership Interest : Fee Simple
Agent info
Contact Agent