Property Description
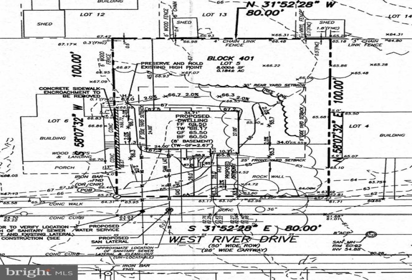
Buildable vacant lot on a quiet dead end street! Construct your dream home with full basement. Zoning approved, MUA public water and public sewer approved, and Camden County Sewer Authority also approved. Photos show lot, house model and grading plan. For an additional $5,000.00 on top of the selling price of $89,900.00, you may have our house plans and grading plan that includes a beautiful 2 story single family dwelling with porch, 4 bedrooms, 2.5 baths, living room, eat in kitchen, laundry room, full basement, and 1 car garage front layout.
Features
N
N
N
: Electric Available, Sewer Available, Water Available, Natural Gas Available
Address Map
W
GPS
MLS Addon
Annually
Annually
PENNSAUKEN TOWNSHIP PUBLIC SCHOOLS
$1,736
2020
R
: Vacant
: Public Sewer
: Public
N
$0
Land For Sale
447 RIVER DRIVE, PENNSAUKEN, New Jersey 08110
0.18 Acre
$89,900
Listing ID #NJCD2000597
Basic Details
Property Type : Land
Status : ACTIVE
Listing ID : NJCD2000597
Price : $89,900
Lot Area : 0.18 Acre
Price Per SQFT : $11
Lot SQFT : 8,000 Sqft
Ownership Interest : Fee Simple
Agent info
Contact Agent